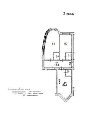
Лот № 1 «Нежилое помещение с кадастровым номером 76:23:040515:495, площадью 77,6 кв.м., расположенное по адресу: Ярославская область, г. Ярославль, ул. Наумова, д. 65/1, пом. 54,55,57-61». Продаваемое имущество находится в залоге у Общества с ограниченной ответственностью «Управляющая компания «БАЙКАЛ» Д.У. Закрытым паевым инвестиционным комбинированным фондом «Фонд имущественных споров» (127018, г. Москва, вн. тер. г. муниципальный округ Марьина Роща, ул. Сущёвский Вал, д. 49, помещ. 401, ОГРН 1147746652932 ИНН 7714937546) по договору об ипотеке (залоге недвижимости) № 13-ГР от 01.08.2017.В силу абз. 6 п. 5 ст. 18.1 Федерального закона от 26.10.2002 N 127-ФЗ "О несостоятельности (банкротстве)" реализация заложенного имущества на торгах влечет за собой прекращение залога в отношении конкурсного кредитора, по требованию которого обращено взыскание на предмет залога. Таким образом, с момента заключения договора купли-продажи залог в отношении предмета договора прекращается.Ограничения прав и обременения объектов недвижимости отражены в выписках из Единого государственного реестра недвижимости.
Вы здесь
Завершенные
Лот № ░░░░░░░░░
Открытый аукцион
5 432 000,00 руб.
Полная информация по лоту доступна после оформления подписки
Полная информация по лоту доступна после оформления подписки
Полная информация по лоту доступна после оформления подписки
Полная информация по лоту доступна после оформления подписки
Отчеты по лоту доступны после оплаты подписки
Запросы доступны после оформления подписки

