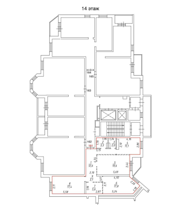
Квартира, жилое помещение, кв. 161 Квартира, жилое помещение: 92,50 кв. м, кадастровый номер: 27:23:0040673:328, адрес (местоположение): Хабаровский край, г. Хабаровск, Железнодорожный, пер. Санитарный, д. 3, кв. 161, 14 этаж. ................................................................................................................................................ Указанное имущество является предметом залога Федотова О.Н. На вышеуказанном имуществе имеются запреты на совершение регистрационных действий, вынесенные в рамках уголовных дел (на основании судебных актов об аресте, продления ареста Тверского районного суда г. Москвы, Мещанского районного суда г. Москвы), запреты вынесенные должностными лицами ФССП России, актуальная информация о действующих арестах в отношении вышеуказанных квартир также отражена в аукционной документации - выписки на 4 квартиры из Росреестра в разделе 4. Ограничения прав и обременения объекта недвижимости. .............................................................................................................................................Участники торгов, Победитель торгов, Выгодоприобретатель, Участники, действующие по агентскому договору подавшие заявку на торги и оплатившие задаток считаются уведомленными о наличии вышеуказанных запретов на совершение регистрационных действий. Победитель торгов, подписавший договор купли-продажи, акт приема-передачи самостоятельно снимает аресты, запреты на совершение регистрационных действий, вынесенные в рамках уголовных дел (на основании судебных актов об аресте, продления ареста Тверского районного суда г. Москвы, Мещанского районного суда г. Москвы), запреты вынесенные должностными лицами ФССП России.
Вы здесь
Завершенные
Лот № ░░░░░░░░░
Публичное предложение
5 400 000,00 руб.
34%
текущая/итоговая цена:
3 612 340,00 руб.
45.00%
минимальная цена:
3 000 000,00 руб.
Полная информация по лоту доступна после оформления подписки
Полная информация по лоту доступна после оформления подписки
Полная информация по лоту доступна после оформления подписки
Полная информация по лоту доступна после оформления подписки
Отчеты по лоту доступны после оплаты подписки
Запросы доступны после оформления подписки
19.08.2024 5400000.00
24.08.2024 4800000.00
29.08.2024 4200000.00
03.09.2024 3600000.00
08.09.2024 3000000.00

